Sala de Prensa
02/12/2019
El Ayuntamiento reformará los aseos del antiguo colegio Las Llanas
El área de Obras invertirá 15.000 euros para mejorar los cuartos de baño de la segunda planta y se compromete a continuar actuando el próximo año 2020
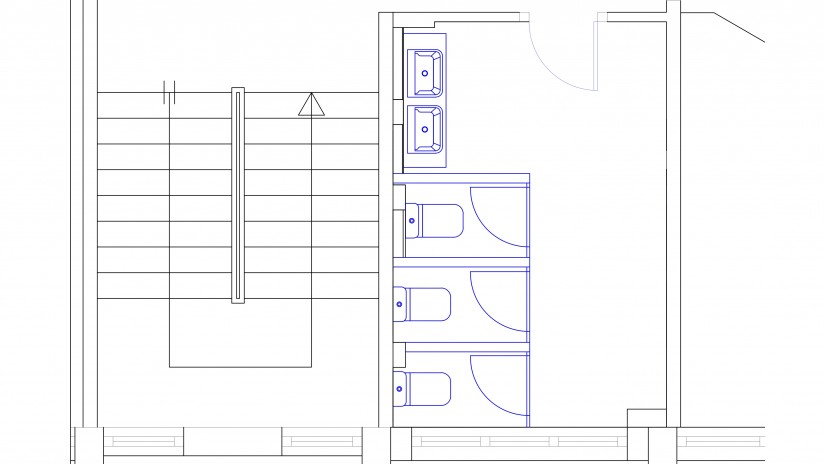
El Ayuntamiento de Sestao realizará obras en el antiguo colegio Las Llanas para reformar los aseos existentes por otros más modernos. La primera actuación se llevará a cabo de manera inmediata en la planta segunda, donde se van a invertir 15.000 euros.
Según ha explicado la concejala de Obras y Mantenimiento de Obras y Espacios Públicos, Leire Fernández, el día 1 de octubre realizó una visita a este edificio en compañía de técnicos municipales para comprobar el estado de los cuartos de baño.
“Durante la visita comprobamos que los baños de la planta segunda estaban en muy mal estado, por ello, mandamos levantar un plano y presupuestar la demolición de los mismos así como la reconstrucción de unos nuevos”, ha indicado la edil, quien ha añadido que el Departamento técnico pidió tres presupuestos y a día de hoy “los trabajos ya están aprobados y adjudicados”, por ello espera que comiencen antes de finalizar el año con un coste cercano a los 15.000 euros.
De cara al próximo año 2020 el Ayuntamiento tiene previsto continuar reformando los aseos de este edificio, muy posiblemente los de la tercera planta. Actualmente el antiguo colegio Las Llanas se encuentra cedido gratuitamente a diversas asociaciones del municipio para que desarrollen su actividad.
Destacados...
NOTICIA
30/03/2026
NOTICIA
27/03/2026
NOTICIA
25/03/2026
NOTICIA
16/03/2026
NOTICIA
11/03/2026
Noticias más vistas...
NOTICIA
04/03/2025
NOTICIA
09/10/2025
NOTICIA
09/10/2025
NOTICIA
03/06/2025
NOTICIA
07/11/2025

CONTACTO
WWW.EAJ-PNV.EUS























